| 土佐山田町 3,470万円 「新築住宅」 | 更新日2025-10-16 |
![]() C号地:北西角地です。 | ![]() 間取図 | ![]() 区画図 |
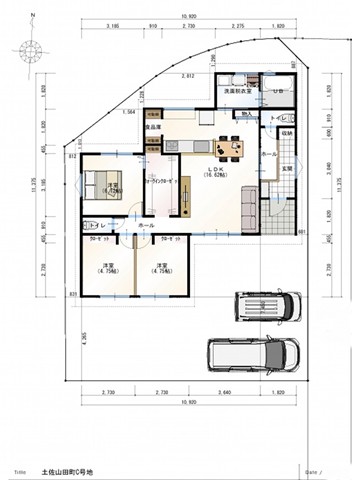
C号地:北西角地 県道31号線の一本北の通りに位置した生活便利な立地にある全4区画の新分譲地 開放感ある北西角地に建つ省令準耐火仕様平屋住宅 コンパクトですが、各所に収納があり暮らしやすい間取りです。 平屋ですが、トイレは2か所ありとてもTWICE 木造耐震等級3・断熱等級5(ZEH水準)の長期優良住宅 ◆給湯器はエコジョーズ・乾太くん設置=指定ガス業者との契約必要 ◆住宅瑕疵保証:10年・地盤保証:20年
![]() 省エネ性能ラベル |
| 所在地 | 土佐山田町 | 部屋タイプ | 3LDK |
| 価格 | 3,470万円 | 構造 | 木造 |
| 土地面積/坪数 | 192.92㎡/58.36坪 | 建物面積/坪数 | 83.84㎡/25.36坪 |
| 駐車場 | 3台~ | 建築年月日 | R7年12月:2015 完成予定 |
| 交通 | 北本町1丁目バス停歩9分 | 近隣施設 | ドラッグセイムス 土佐山田北本町店 |
| 取引形態 | 媒介 | 用途地域 | 第1種低層 |
| 管理ID | N1209 |
| 接道 | 東 | 西 | ||
| 南 | 北 | 4.5m公道に9.8m接道 | ||
| 間取り | 平屋)6.12洋・4.75洋・4.75洋・16.62LDK・WIC・T・T | |||
| 設備 | 電気 上水道 下水道 プロパンガス | |||
| 学校区 | 山田小学校 鏡野中学校 | |||
| 支払い例 | 3,470万円借入の場合 金利1.12%(保証料込) 3年固定 35年返済月々 100,000円 ボーナス払い不要 | |||
![]() |
![]() |
![]() |
![]() |
掲載された物件情報は、内容変更・契約済の場合もございますのでご了承ください。 最新物件状況に関してはTEL.088-883-6880までお問合せください。