| 高知市 万々 1,940万円 「売家物件」 | 更新日2026-04-03 |
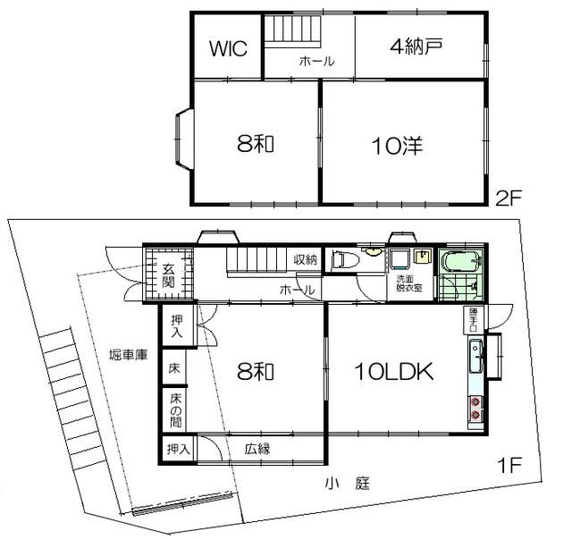
![]() 外観 南向です。 | ![]() 間取図 | ![]() 駐車スペース |
西側空いて陽当良く開放感ある南西角地風の立地に建つ全居室南向の明るいお家 敷地は前面道路より一段高く通りを通る人目も気になりにくいです。 駐車場は敷地を有効活用出来る堀車庫を採用しています。 県道44号線:高知北環状線の北側にある静かな住宅地
![]() 室内 | ![]() 室内 | ![]() 室内 | ![]() 室内 | ![]() 室内 |
![]() 室内 | ![]() 室内 | ![]() 室内 | ![]() 室内 | ![]() 室内 |
| 所在地 | 万々 | 部屋タイプ | 3LDK |
| 価格 | 1,940万円 | 構造 | 木造 |
| 土地面積/坪数 | 152.15㎡/46.03坪 | 建物面積/坪数 | 104.7㎡/31.67坪 |
| 駐車場 | 有 | 建築年月日 | H4年5月:1992 |
| 交通 | 万々公民館通バス停歩9分 | 近隣施設 | サニーマート 中万々店 |
| 取引形態 | 媒介 | 用途地域 | 第1種低層 |
| 管理ID | B6091 |
| 接道 | 東 | 西 | ||
| 南 | 5.4m公道に12.5m接道 | 北 | ||
| 間取り | 2F)10洋・8和・4納戸 1F)8和・10LDK | |||
| 設備 | 電気 上水道 浄化槽 都市ガス | |||
| 学校区 | 初月小学校 城北中学校 | |||
| 支払い例 | ||||
![]() |
![]() |
![]() |
![]() |
掲載された物件情報は、内容変更・契約済の場合もございますのでご了承ください。 最新物件状況に関してはTEL.088-883-6880までお問合せください。